Walden & W. 3rd Townhouse
Modern Townhomes with Space to Grow
Beautifully updated three-bedroom townhomes featuring modern finishes, private basements, and shared outdoor space—perfect for families or roommates looking for comfort and convenience.
The Walden & W. 3rd Townhomes have been completely renovated from the studs up, offering bright, open layouts and the durability of brand-new interiors. These homes combine the comfort of residential living with the ease of professional management, all in a central Buffalo location.
Enjoy spacious rooms, abundant natural light, and a shared fenced-in backyard that provides a perfect outdoor retreat.
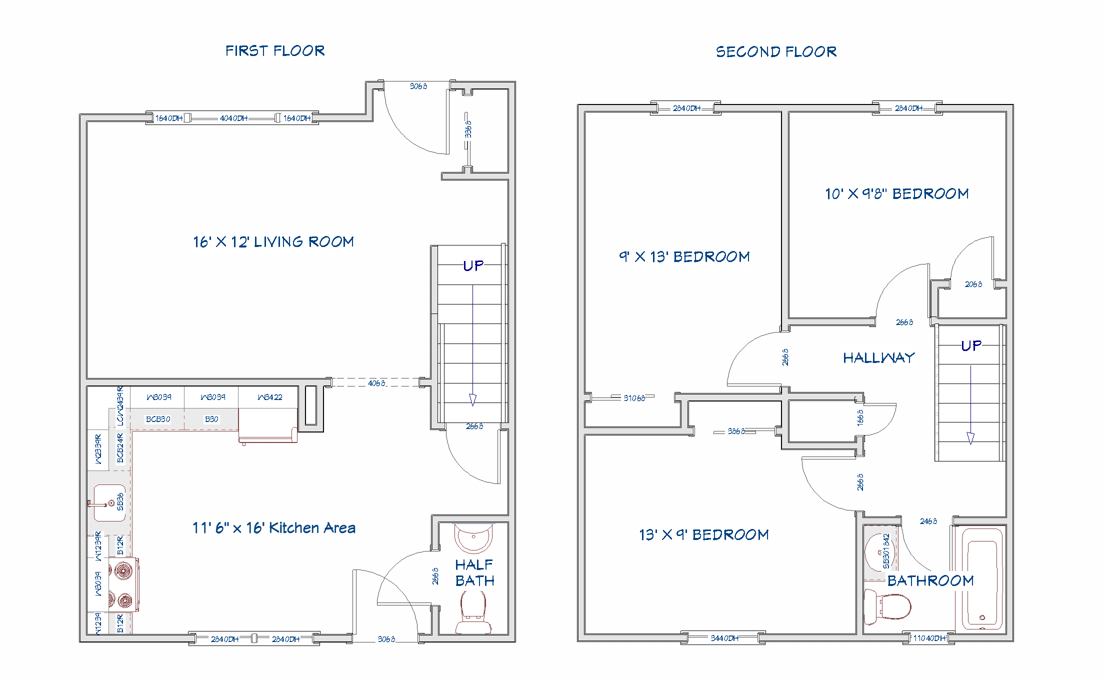
Townhome Details
Size
1,000 sq. ft.
Bedrooms
Bathrooms
- Private basement
- Fully updated kitchen and baths
- Stainless steel appliances and built-in microwave
- Laminate countertops and flooring
Rent
$1,500–$1,950/month
Laundry
Washer and dryer hookups in basement
Parking
Off-street parking included
-
Bright, open floor plan with large windows
-
Shared fenced-in backyard with patio
-
Water included
Conveniently Situated Near Buffalo’s Best
Close to local schools, shops, and dining, the Walden & W. 3rd Townhomes offer a great balance of city access and neighborhood comfort. It’s a prime spot for residents who value convenience and a welcoming community.
Schedule a Visit or Apply Today
Ready to make one of these townhomes your next home?
